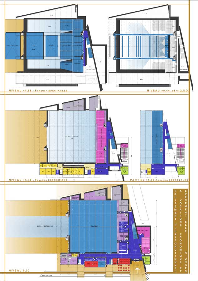
Equipement plurifonctionnel à Riorges (Loire)
Nature de l’Opération :
Concours de maîtrise d’œuvre.
Equipement plurifonctionnel économique et événementiel.
Maître d’Ouvrage : Communauté d’agglomération du Grand Roanne.
Surface dans œuvre : 5 000 m² hors parking
Coût d’objectif ht : 9 100 000 є
Equipe de maîtrise d’œuvre :
CRB architecte mandataire, agence bacconnier scénographe, Atelier des sites paysagiste, Tetrac structure, ECP économie, Barbanel fluides, Peutz acoustique, SEFCO VRD.
Rôle de l’agence :
Halle de spectacles 3300 m², gril mobile jusqu’en extérieur, scène de 608 m², régies, gradins télescopiques 2520 places
Salle de Congrès 200 places avec régie et boxes de traduction.


